YA 43

Designed as part of a biennial competition for students enrolled in the Montgomery County Thomas Edison High School’s architecture class where the winning design and the one most affordable to the county would be built. This design was placed in the top 10 of 40. This design is included three floors, second-floor bedrooms, first floor with a living room, kitchen, and garage and finally basement for HVAC, a playroom, a guest bedroom as well as storage. The Rubric included it to be designed as a 2, 730 SF lot and was entirely supposed to be done on Autodesk Revit Program. Everyone involved was aspected to include respected floor plans, section cuts, elevations, electrical as well as framing plans for each floor. Despite this, it was free range and all game for the competition and it was up to the judges to see which one can fit in that specific lot.

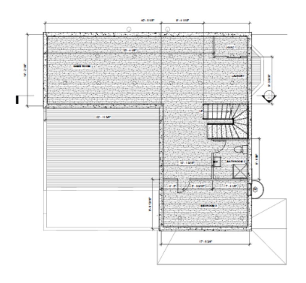
The basement includes a Guest room, bathroom, and HVAC as well as a gaming room with one window on the right side as an emergency exit.
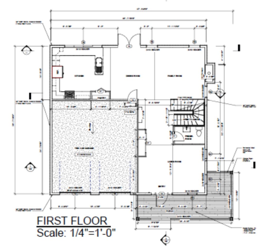
The first floor includes a kitchen with a connected L-shaped extension, a Living room with an electric fireplace, bathroom and access to the garage, and finally the entrance porch. The stairs walls allows a transition from the entry lounge space to a more open family space that connect both the kitchen and living room.


The second floor includes, all bedrooms with two smaller ones with a master bedroom with its master bath. The two smaller bedrooms share a bathroom located in the hallway. A Bay window is included in the Master bedroom to expand the space and give more elegance to the room.







+1-202-288-9884 | alexandergloew@gmail.com